一. 打印输出前的系统设置
1. 绘图仪的设置
绘图仪目前主流的分喷墨打印机和切割机,输出打印前根据所用的机器来选择,喷墨机选择HPGL语言,立式切割机选立式切割机,平板切割机选平板切割机。
2. 输出设置
菜单栏里,【设置】→【绘图仪】→【输出设置】,这里统一设置布纹线上显示的信息和排料信息。这里没有设置则最后打印时勾选上相关的设置也不会显示,具体的根据需要来选择。
3. 自动输出设置
在【设置】,【路径设置】里,可以设置自动输出的位置。
确定后,系统就设置好了自动输出的位置,后面打印时直接点确定就可以自动输出到设置的文件夹。
二.打印输出参数说明
1. 排料幅宽
面料设置幅宽时的宽度。输出时自动带上这个数据。
2. 输出幅宽
正常情况下同排料幅宽一致。当排料的宽度超过能打印的宽度时,把输出幅宽设置成能打印的宽度,系统自动分成两个宽度来打印。如面料幅宽180,最大能打印的宽度为150,则输出幅宽可以设置成150,就可以打印成150+30两段出来,再根据分割虚线拼接一下。也可以输出幅宽设置成140,就可以打印成140+40=180,以此类推
3. 分段幅长
按设置的长度来一段一段打印,一般用于笔试机,或立式切割机。
4. 默认模式
系统可以设置几种模式,分别对应不同的输出要求。
5. 缝制线
就是净样线,有三种输出方式:实线,虚线,不输出打印。
6. 剪口
7. 布纹线
分为普通布纹线和接边布纹线。普通布纹线则按原裁片设置的长度输出。接边布纹线则是延长到边,一般可以用于对条格。
接边布纹线 【目前预览里选接边就看不到布纹线,但时输出时有】
8. 辅助线
排料时增加的辅助线(用工具A来设置,或面料设置里的辅助线设置偏移)
选文字工具A,再按CTRL点标尺线,移动鼠标,就可以设置辅助线。
面料设置里的辅助线,【预览里点击切换没有反应,但是输出时有】
9. 净样剪口
10. 裁片文字
裁片上用文字工具A做的相关文字
11. 排料信息
显示排料的相关信息。如幅宽,幅长,排料片数,已排片数,单耗
可以设置排料信息放在前端还是后端,还是两边都放【设置→排料设置→排料信息输出位置】
12. 单片数量
用于在排料信息后面显示单个裁片参与排料的数量。要把【排料信息】勾上,才能显示出来。【极少使用,排料信息里有总片数和已排片数,用于检查是否少排裁片】
13. 面料名
用于是否显示面料的名称
14. 标记码
用字母来表示。一个码裁多件时,按顺序用字母这个标记码来分别标注每一件裁片,方便后期分包。【同一尺码同一标记码的为同一件】
15. 缩水
用于是否显示缩水信息
16. 标记
裁片里用孔位工具做的打一个X的符号,可用于标示裁片绣花位等。标记可以输出打印,但不可以设置切割。
17. 尺码
裁片的码数,基本上这个都是要勾选的
18. 边框
排料设置的幅宽和排好料后幅长组成的一个大外框。一般打印时要勾选,切割不勾选。
19. 标尺
边框上显示长度数据,有边框才能显示标尺
20. 日期
用于在裁片上显示输出打印时间日期
21. 条格线
用于显示面料设置里设置的条格
打印预览里目前只显示横条,竖条不显示,但是输出到打印机那里,可以完整输出。
22. 床号
用于在裁片布纹线上显示床号数据
23. 文件名
用于在裁片上显示文件名称。注意:文件名和款式名【款号】可能不一样。文件名只是保存文件时的名称,款号名可以按款式来命名。
24. 左右片
用于显示裁片注释,标示裁片是本片还是对称片,是左片还是右片。不建议注释用L和R来表示左右片,防止与码数搞混淆。
25. 裁片名
用于显示裁片名称
26. 取首字
在英文版本里英文名称可能很长,勾上取首字,则取裁片名称第一个字来显示 。用来分辨裁片。中文的裁片名,则用阿拉伯数字来区别。
27. 孔位
同剪口一样,笔试机或喷墨机选【下笔】;平板切割选【下刀】。勾上【外园】则画一个圆形。不勾,则出现一个+号来表示。
28. 位移
用于设置打印起始点的位移量。
29. 打印校正
在这四个数据均为1时,画一个100*100的方框,输出打印出来。再打开输出对话框,在走纸方向/走笔方向输入测试原始值100,再在打印尺寸里相应输入打印完的测量值,则校正完成。有的是打印机校正,则这里不用去调整,默认就可以。
30. 始段和末段
面料设置了偏移量或输出时设置分段幅长数据,则自动算出段位数。就可以根据需要选择输出打印的段。
如下面分段幅长为30,系统根据排料长度分为5段。
如下面始段设置为3,末段设置为5.则可以从第3段输出打印到第5段。
31. 字号
用于设置输出的文字字号大小,生成裁片时也有字号设置,打印字号可以这里再次设置。
勾选【字号用于裁片】则字号会根据设置来改变大小,否则这里只改字号,没有任何变化。不勾选【自动适应裁片】则字号全部一样大。
勾上【自动适应裁片】则会自动根据裁片的大小来设置每个裁片的字号大小。用于防止裁片过小,字号过大超过裁片范围。
32. 横向打印
整个排料打印方向与原来的反过来。
原来不勾【横向打印】时打印结果:
勾上横向打印,不设置间隔时,输出结果:
系统有设置分段幅长时,勾上横向打印和间隔,则按分段有间隔打印出来。横向打印可以用于面料幅宽较窄,而打印纸张较宽时,用来节约纸张。
33. 同名裁片合并与包含实样
多种面料在同一裁片上显示。用于做头样节约纸张用,如面料和朴裁片一样就可以用同一裁片打印出来。
34. 【客户】【款号】【订单号】
用于显示客户名称和款号名称,订单号名称。
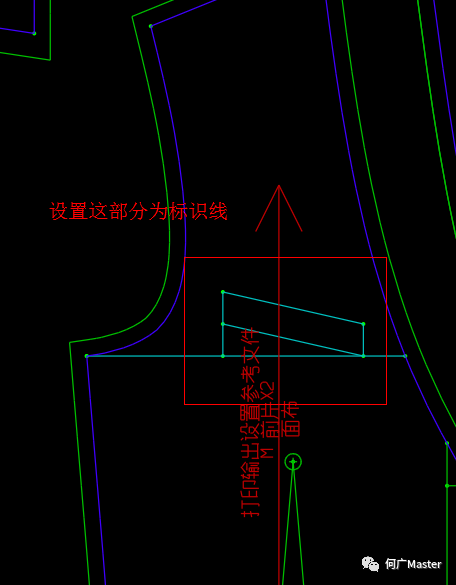
35. 内部线
有【实线】 【虚线】 【标识线】三种输出方式。
【实线】:
标识线:裁片模式,按ALT再左键点内部线。则设置该内部线为标识线。输出内部线时不勾标识线,则该线不输出。用于选择性输出内部线。
36. 单段输出
设置了分段幅长后,排料图自动分成多段,【单段输出】则每一段输出成一个文件。
37. 批量输出
勾选【批量输出】,就可以一次性选择排好料要输出的面料。确定后就会自动按面料输出各自的排料图。
38. 输出路径
排料生成的PLT文件保存的位置。
三步搞定默认自动输出文件夹设置方法:
1.在电脑里新建一个文件夹,命名为【PLT】等,在打印机的输出中心里把默认读取文件夹设置成这个【PLT】文件夹。
2.在博克软件设置里点开路径设置:
3.在【路径设置】里,【PLT文件】这栏,后面点设置按钮,再指定对应的文件夹就可以了。


















































































